Mapa   Ficha
Moderno chalet pareado con vistas al mar y piscina privada en construcción – Parque Comercial de Mojácar
Mojácar (Zona el Palmeral) - REF. 3153

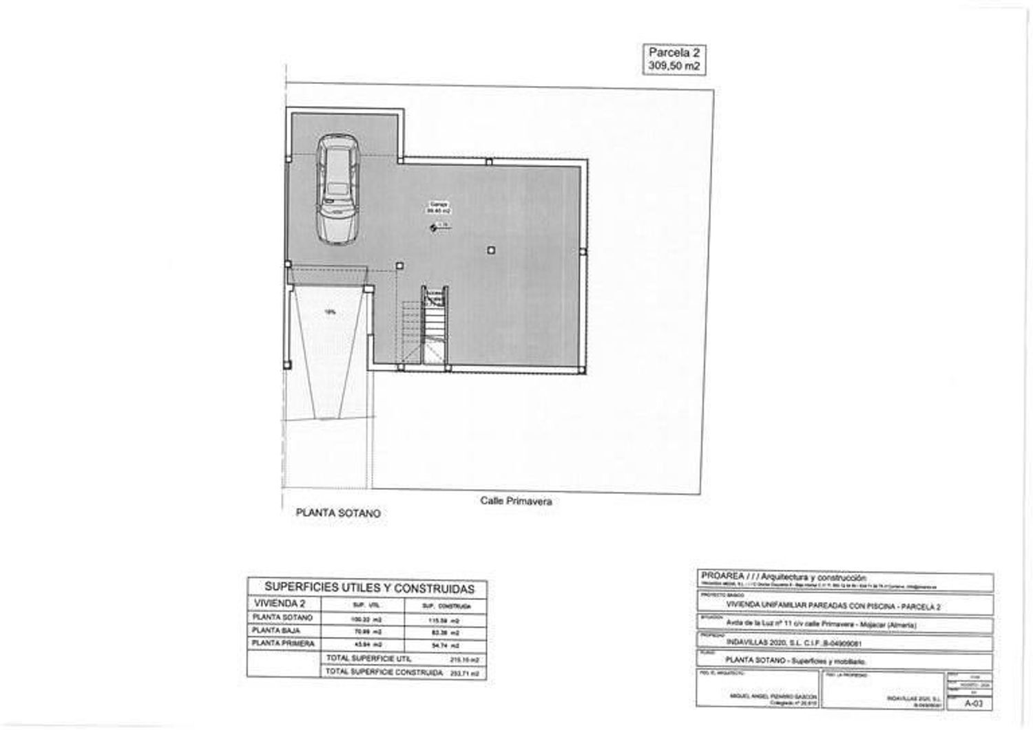
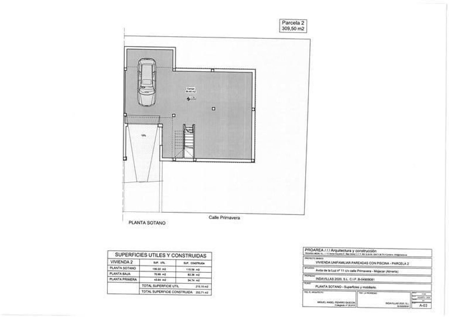
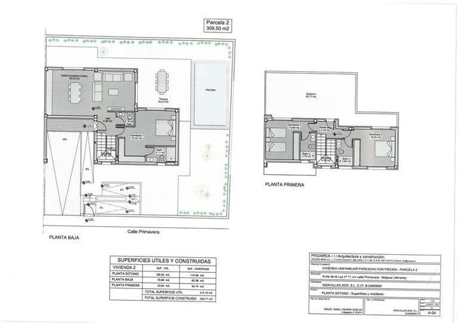
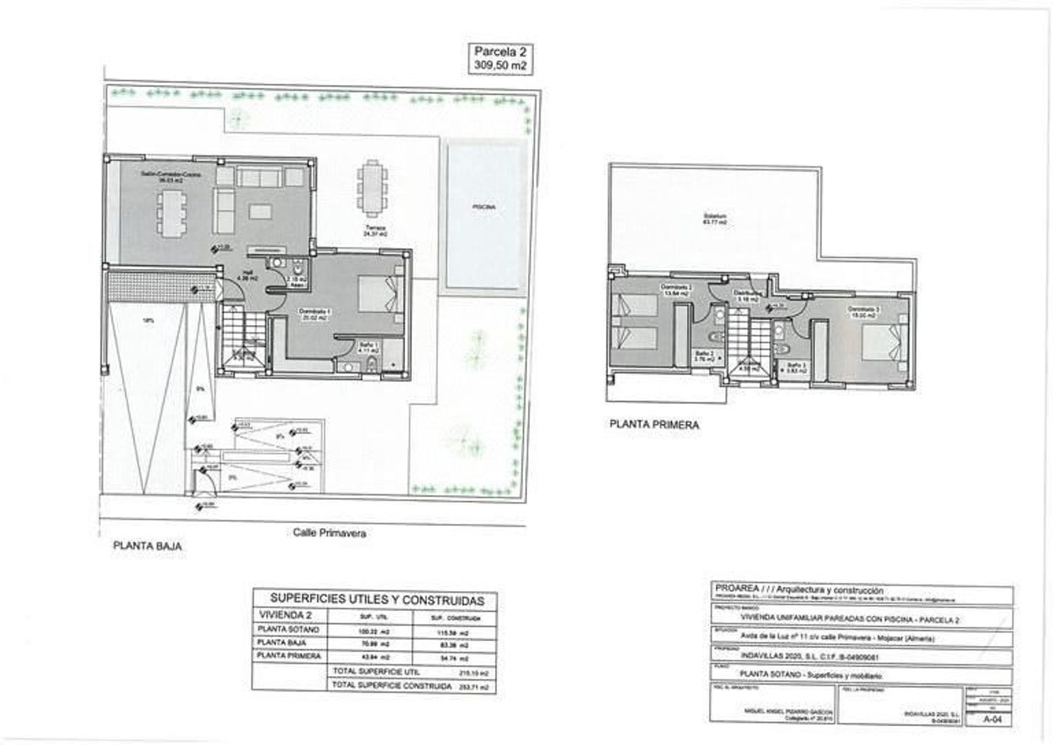
253 m2

3

4

1
venta: 575.000 €
Descripción

Presentamos este espectacular chalet pareado en construcción, situado en una de las zonas más demandadas de Mojácar, junto al Parque Comercial. Su excelente ubicación ofrece proximidad a todos los servicios, restaurantes, tiendas y a la playa, que se encuentra a pocos minutos en coche o un agradable paseo.

La vivienda, de diseño contemporáneo, destaca por su amplitud, funcionalidad y luminosidad. Con una superficie construida de 253 m² sobre una parcela de 307 m², esta propiedad combina a la perfección comodidad, elegancia y vistas impresionantes al mar y la montaña.

El acceso principal se realiza a través del amplio sótano, que funciona como garaje cerrado con capacidad para varios vehículos y espacio adicional de almacenamiento. Desde aquí, una escalera interior comunica directamente con la planta baja, creando un acceso cómodo y seguro.

En la planta baja se encuentra un espacioso salón comedor con grandes ventanales y salida a una estupenda terraza con vistas al mar. La cocina está integrada en el espacio principal, ofreciendo un concepto abierto moderno (no incluida en el precio), perfecto para disfrutar en familia o con amigos. En esta misma planta encontramos también un aseo de cortesía y un dormitorio principal en suite con baño privado y vestidor, ideal para mayor comodidad y privacidad.

A través de una elegante escalera interior accedemos a la primera planta, donde se ubican dos amplios dormitorios, ambos con baño en suite y salida directa a una gran terraza desde la que se pueden contemplar las vistas panorámicas al mar Mediterráneo y las montañas de Mojácar.

El exterior de la vivienda se complementa con una zona aterrazada ajardinada y una piscina privada, perfecta para refrescarse y disfrutar del clima cálido durante todo el año.

Entre sus características destacan los armarios empotrados, aire acondicionado con bomba de frío/calor, calefacción individual, y acabados de alta calidad que garantizan confort y eficiencia.

Este chalet pareado en construcción representa una oportunidad excepcional para quienes buscan una vivienda moderna, con espacios amplios, vistas espectaculares y una ubicación inmejorable en Mojácar. Ideal como residencia permanente, segunda vivienda o inversión inmobiliaria en una de las zonas más cotizadas de la costa almeriense.




Características
Precio Venta 575.000 €
Construidos 253 m2
Parcela 307 m2
Precio/m² 2.273
Dormitorios 3
Baños 4
Trastero
Terraza
Aire acondicionado
Garaje
Adaptado
Calificación Energética (G) VER
Acceso discapacitados
Ubicación
La dirección del inmueble es aproximada.
Escalas de eficiencia


-
-

Contáctanos

Si deseas más información sobre esta propiedad, por favor, rellena el formulario.

 Sí, he leído y/o acepto las Condiciones de uso y la Política de privacidad
Inmuebles similares:
 
600.000 €
Ref. 3119  150 m2  3  2
AVENIDA TORTUGA BOBA, 28
 
525.000 €
Ref. 2195  98 m2  3  2
Chalet Independiente en venta en San Juan De Los Terreros, con 98 m2, 3 habitaciones y 2 baños, Piscina y Aire acondicionado.